Studienauftrag mit PQ für die Umnutzung eines Büro- und Gewerbehauses zu Wohnen
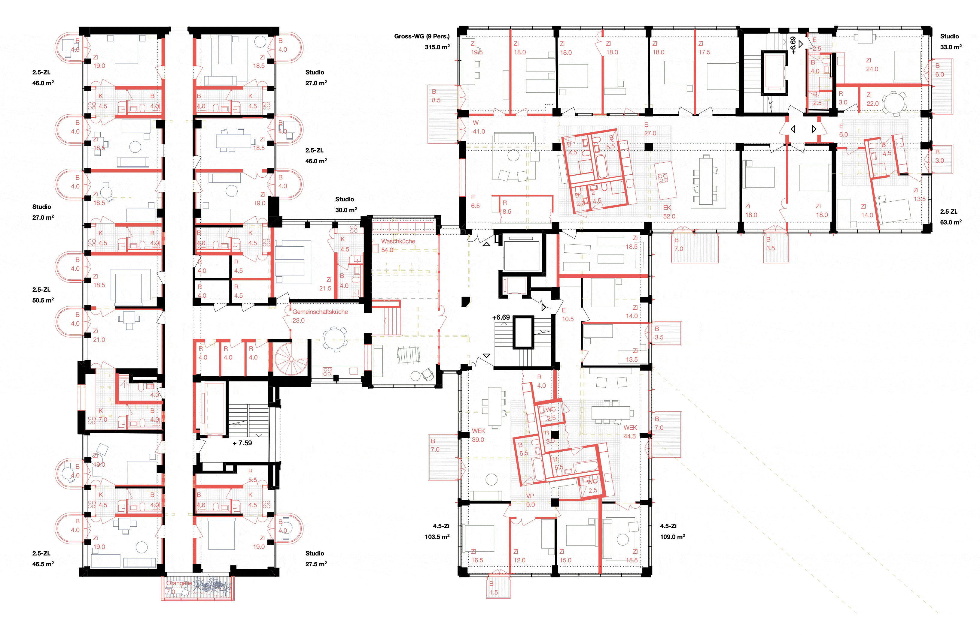
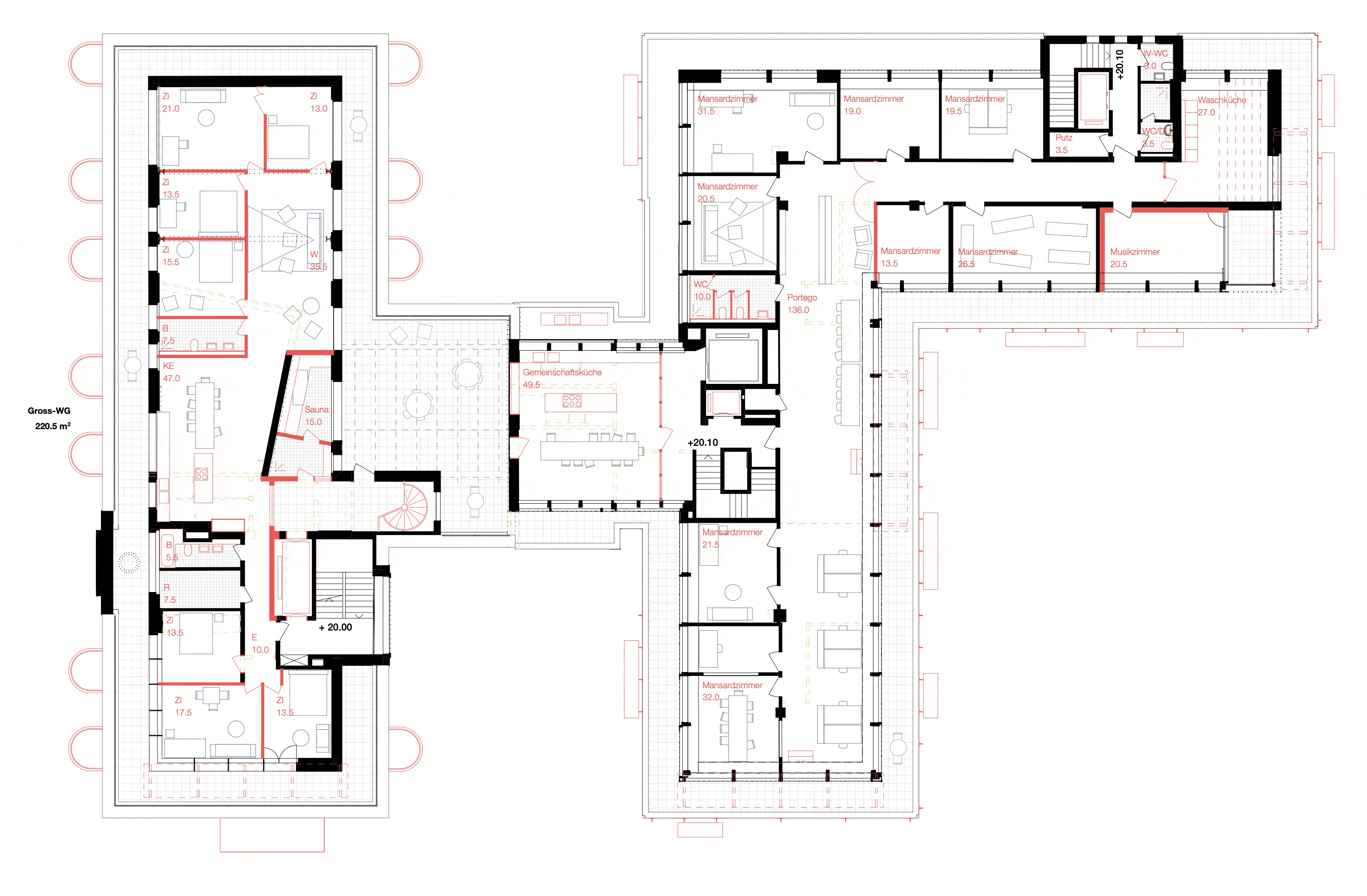
Teil und gleichsam teilnahmslos wie viele ihrer Agglomerations-Nachbarn, stehen die beiden Gewerbehäuser Dixa Micro dort etwas grau und weiss, nebeneinander an nunmehr prominenter Weggabelung zwischen den Studios des SRF, dem genossenschaftlichen „Mehr als Wohnen“ und dem spekulativen „Glattpark“. Und genau dort bietet dieser Ort eine Chance für eine neue Pioniertat. Ein Nicht-Ersatzneubau, ein Un-anonymes-Wohnumfeldhaus, welches das Gemeinsame und das Dazwischen pflegt, welches diverse Nachbarschaften schätzt und sich zum Quartier öffnet. Wir schlagen eine Strategie des „kleinstmöglichen Eingriffs“ vor, die den vielleicht aus der Mode gefallenen Gebäudeausdruck als Ausgangslage respektiert und diesen mit gezielten „kleinstmöglichen“ Eingriffen für die neue Nutzung anpasst. So bleibt graue Energie auch weit über die Primärstruktur hinaus als effektiv nutzbares Bauteil am Gebäude gebunden, was zu leistbaren Mieten und einer gleichsam besseren Gesamtenergiebilanz führt. An drei Orten knüpft das Haus an die Stadt an - wir verbinden diese mit einer >Rue intérieure<, die in der Unterschiedlichkeit der Zugangssituationen die drei Treppenhäuser verbindet und die variierenden Niveaus barrierefrei vermittelt. Die drei bestehenden Treppenhäuser erschliessen 83 Wohnungen und 8 Mansardzimmer, Raum für 195 Bewohner:innen.
Teil und gleichsam teilnahmslos wie viele ihrer Agglomerations-Nachbarn, stehen die beiden Gewerbehäuser Dixa Micro dort etwas grau und weiss, nebeneinander an nunmehr prominenter Weggabelung zwischen den Studios des SRF, dem genossenschaftlichen „Mehr als Wohnen“ und dem spekulativen „Glattpark“. Und genau dort bietet dieser Ort eine Chance für eine neue Pioniertat. Ein Nicht-Ersatzneubau, ein Un-anonymes-Wohnumfeldhaus, welches das Gemeinsame und das Dazwischen pflegt, welches diverse Nachbarschaften schätzt und sich zum Quartier öffnet. Wir schlagen eine Strategie des „kleinstmöglichen Eingriffs“ vor, die den vielleicht aus der Mode gefallenen Gebäudeausdruck als Ausgangslage respektiert und diesen mit gezielten „kleinstmöglichen“ Eingriffen für die neue Nutzung anpasst. So bleibt graue Energie auch weit über die Primärstruktur hinaus als effektiv nutzbares Bauteil am Gebäude gebunden, was zu leistbaren Mieten und einer gleichsam besseren Gesamtenergiebilanz führt. An drei Orten knüpft das Haus an die Stadt an - wir verbinden diese mit einer >Rue intérieure<, die in der Unterschiedlichkeit der Zugangssituationen die drei Treppenhäuser verbindet und die variierenden Niveaus barrierefrei vermittelt. Die drei bestehenden Treppenhäuser erschliessen 83 Wohnungen und 8 Mansardzimmer, Raum für 195 Bewohner:innen.
“Löwenzahn” - Projektwettbewerb Umnutzung Büro zu Wohnen
Schärenmoosstrasse 115, 117, Zürich
Auftraggeberin: Stiftung PWG, Zürich
Kollaboration: studio OU, Zürich
Landschaft: Johannes von Pechmann Stadtlandschaft, Zürich
Ingenieur: Schmidt+Partner, Basel
Zeit: 2022
Schärenmoosstrasse 115, 117, Zürich
Auftraggeberin: Stiftung PWG, Zürich
Kollaboration: studio OU, Zürich
Landschaft: Johannes von Pechmann Stadtlandschaft, Zürich
Ingenieur: Schmidt+Partner, Basel
Zeit: 2022







