Geladener Studienauftrag für die Transformation eines ehemaligen Warenhauses in ein Wohnhaus mit 40 Wohnungen und Gewerbenutzungen
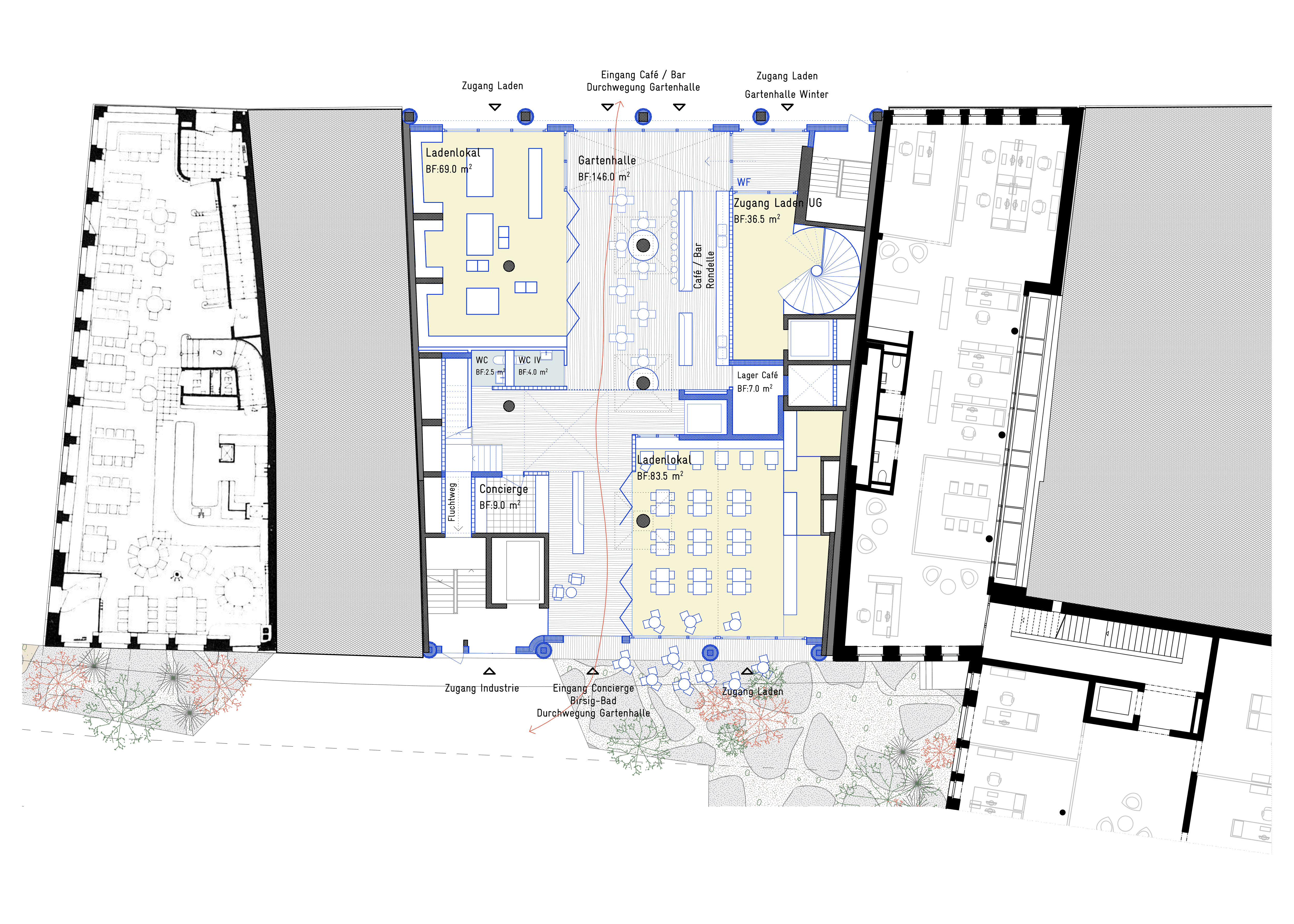
Küchlin's Variété hat den breiten Fassadentakt in der Steinen gesetzt, wir wollen uns nicht widersetzen: Ein grosses Haus darf auch ein grosses Haus bleiben. Die Nutzung aber ändert sich und damit der Öffnungsanteil der Fassade. West- und Ost haben jedoch ihren eigenen Charakter. Im Westen der wilde Konsum, die breite Strasse, der grössere Auftritt. Im Osten die schmalere Gasse, vielleicht bald mehr Grün, mehr Wohnen? Das Haus darf seine zwei Gesichter bewahren. Im Sinne der Bestandeswahrung bleibt das Schrägdach über dem ersten Dachgeschoss bestehen und leistet als Sonnenfänger in Ost und West einen Beitrag für die Energiebilanz. So bleibt die dritte Fassade, das Flachdach zur Gestaltung verfügbar. Hier schlagen wir eine intensive Gartennutzung vor, die durch den Rückbau der obersten Geschossdecke ermöglicht wird. Ein Hortus Conclusus, ein krauses, grünes Dach!
Sieben oberirdische und fünf unterirdische Geschosse bieten Raum für neue Nutzungen unterschiedlicher Anforderungen. Wir stellen diesen jeweils eine darauf angepasste Erschliessungstypologie zur Seite. Während in den Untergeschossen die flexible Entfluchtung der zusammenhängenden Fläche im Vordergrund steht, ermöglicht das innenliegende Treppenhaus in den Obergeschossen die maximale Belichtung und die flexible Erschliessung der vorwiegend kleineren Nutzungseinheiten. Treppenhaus und Lift bilden mit zwei eingefügten Licht- und Luftschächten und den bestehenden, massiven Pilzstützen ausdifferenzierte Vorzonen für die Erschliessung von acht Wohnungen pro Geschoss. In den vier Regelgeschossen können vier 2.5 Zi-Wohnungen und vier 1.5 Zi-Wohnungen angeboten werden. Allen gemein ist ein hohes Mass an Raumeffizienz und ein haushälterischer Umgang mit der verfügbaren Fassadenfläche.
Küchlin's Variété hat den breiten Fassadentakt in der Steinen gesetzt, wir wollen uns nicht widersetzen: Ein grosses Haus darf auch ein grosses Haus bleiben. Die Nutzung aber ändert sich und damit der Öffnungsanteil der Fassade. West- und Ost haben jedoch ihren eigenen Charakter. Im Westen der wilde Konsum, die breite Strasse, der grössere Auftritt. Im Osten die schmalere Gasse, vielleicht bald mehr Grün, mehr Wohnen? Das Haus darf seine zwei Gesichter bewahren. Im Sinne der Bestandeswahrung bleibt das Schrägdach über dem ersten Dachgeschoss bestehen und leistet als Sonnenfänger in Ost und West einen Beitrag für die Energiebilanz. So bleibt die dritte Fassade, das Flachdach zur Gestaltung verfügbar. Hier schlagen wir eine intensive Gartennutzung vor, die durch den Rückbau der obersten Geschossdecke ermöglicht wird. Ein Hortus Conclusus, ein krauses, grünes Dach!
Sieben oberirdische und fünf unterirdische Geschosse bieten Raum für neue Nutzungen unterschiedlicher Anforderungen. Wir stellen diesen jeweils eine darauf angepasste Erschliessungstypologie zur Seite. Während in den Untergeschossen die flexible Entfluchtung der zusammenhängenden Fläche im Vordergrund steht, ermöglicht das innenliegende Treppenhaus in den Obergeschossen die maximale Belichtung und die flexible Erschliessung der vorwiegend kleineren Nutzungseinheiten. Treppenhaus und Lift bilden mit zwei eingefügten Licht- und Luftschächten und den bestehenden, massiven Pilzstützen ausdifferenzierte Vorzonen für die Erschliessung von acht Wohnungen pro Geschoss. In den vier Regelgeschossen können vier 2.5 Zi-Wohnungen und vier 1.5 Zi-Wohnungen angeboten werden. Allen gemein ist ein hohes Mass an Raumeffizienz und ein haushälterischer Umgang mit der verfügbaren Fassadenfläche.
Gesamtsanierung & Umnutzung Steinenvorstadt 5, Basel CH
Auftraggeberin: Swiss Prime Site, Zürich
Ingenieur: Schmidt+Partner, Basel
Energiekonzept: einfach gut bauen, Nänikon
Visualisierungen: indievisual, Zürich
Zeit: 2023
Auftraggeberin: Swiss Prime Site, Zürich
Ingenieur: Schmidt+Partner, Basel
Energiekonzept: einfach gut bauen, Nänikon
Visualisierungen: indievisual, Zürich
Zeit: 2023