Studienauftrag mit Präqualifaktion für die Genossenschaft Gurzelenplus. Vierter Preis
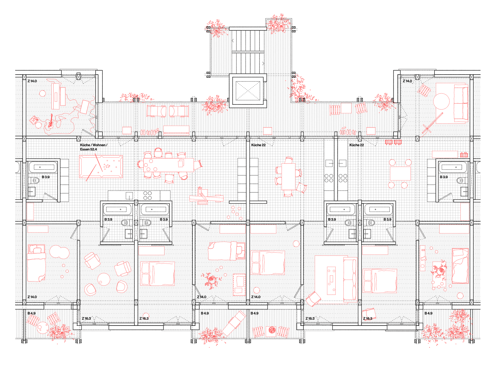
Das Projekt bildet eine Kette von Orten aus, die zwischen den einzelnen Akteuren der Nachbarschaft vermitteln. Sie wirken jeweils in beide Richtungen, sowohl gegen innen als auch gegen aussen. Die Wohnhäuser werden über Eingangshallen direkt ab Stadtniveau erschlossen. Die Hallen eröffnen eine beidseitige Zugänglichkeit; sie werden zum Mittler zwischen Strassenraum und innerer Organisation, zwischen Stadt und Haus.
Laubenfragmente bieten auf unterschiedlichen Niveaus Ein-, Aus- und Durchblicke: Wie eine Zuschauertribüne umgeben sie den Hofraum, der zur Bühne des kollektiven Siedlungslebens wird. Die Küchen sämtlicher Wohneinheiten sind um diese Mitte organisiert. Sie sind das dem Siedlungsalltag zugewandte Zentrum der jeweiligen Einheiten, während die hofabgewandten Individualzimmer von der städtischen Kulisse der angrenzenden Strassenräume profitieren. Es entsteht ein städtisches Durchwohnen zwischen Strasse und Hof, das an den unterschiedlichen Qualitäten teilhat.
Das Projekt bildet eine Kette von Orten aus, die zwischen den einzelnen Akteuren der Nachbarschaft vermitteln. Sie wirken jeweils in beide Richtungen, sowohl gegen innen als auch gegen aussen. Die Wohnhäuser werden über Eingangshallen direkt ab Stadtniveau erschlossen. Die Hallen eröffnen eine beidseitige Zugänglichkeit; sie werden zum Mittler zwischen Strassenraum und innerer Organisation, zwischen Stadt und Haus.
Laubenfragmente bieten auf unterschiedlichen Niveaus Ein-, Aus- und Durchblicke: Wie eine Zuschauertribüne umgeben sie den Hofraum, der zur Bühne des kollektiven Siedlungslebens wird. Die Küchen sämtlicher Wohneinheiten sind um diese Mitte organisiert. Sie sind das dem Siedlungsalltag zugewandte Zentrum der jeweiligen Einheiten, während die hofabgewandten Individualzimmer von der städtischen Kulisse der angrenzenden Strassenräume profitieren. Es entsteht ein städtisches Durchwohnen zwischen Strasse und Hof, das an den unterschiedlichen Qualitäten teilhat.
“pepperminta” - Neubau Wohn- und Gewerbebau Fleur de la Champagne,
Blumenstrasse, Biel/Bienne CH
Auftraggeber: Baugenossenschaft Gurzelenplus, Biel Landschaft: Stauffer Roesch, Basel Soziologie: Christina Schumacher, Sofa*p | Soziologie für Architektur und Planung, Zürich
Zeit: 2020-21
Auftraggeber: Baugenossenschaft Gurzelenplus, Biel Landschaft: Stauffer Roesch, Basel Soziologie: Christina Schumacher, Sofa*p | Soziologie für Architektur und Planung, Zürich
Zeit: 2020-21